Najnovije vijesti
Objavljeno vijesti danas: 126
Pošalji priču
Imaš priču, fotografiju ili video?
GRAD SPLIT: POŽURITE

Evo kako i gdje možete prijaviti štetu od požara

požari
Foto: Ivo Čagalj/Pixsell
1/13
VL
Autor
Vecernji.hr
20.07.2017.
u 15:45

Prijave šteta zaprimat će se u prostorijama gradskih kotareva i mjesnih odbora na opožarenim područjima i u Centralnoj pisarnici Grada Splita

Temeljem Zakona o zaštiti od elementarnih nepogoda, Grad Split poziva građane da žurno prijave nastale štete, priopćili su iz Ureda Grada Splita.

Područje Grada Splita zahvatila je elementarna nepogoda uzrokovana požarom koji je pravnim i fizičkim osobama nanio štete na građevinama, opremi, dugogodišnjim nasadima, šumama, stočarstvu, obrtnim sredstvima i ostalim dobrima i troškovima.

Prijave šteta zaprimat će se u prostorijama gradskih kotareva i mjesnih odbora na opožarenim područjima (Mejaši, Sirobuja, Neslanovac, Donje Sitno, Gornje Sitno, Kamen, Srinjine, Žrnovnica) i u Centralnoj pisarnici Grada Splita na adresi 21000 Split, Obala kneza Branimira 17.

Upute za prijavu štete fizičkim osobama

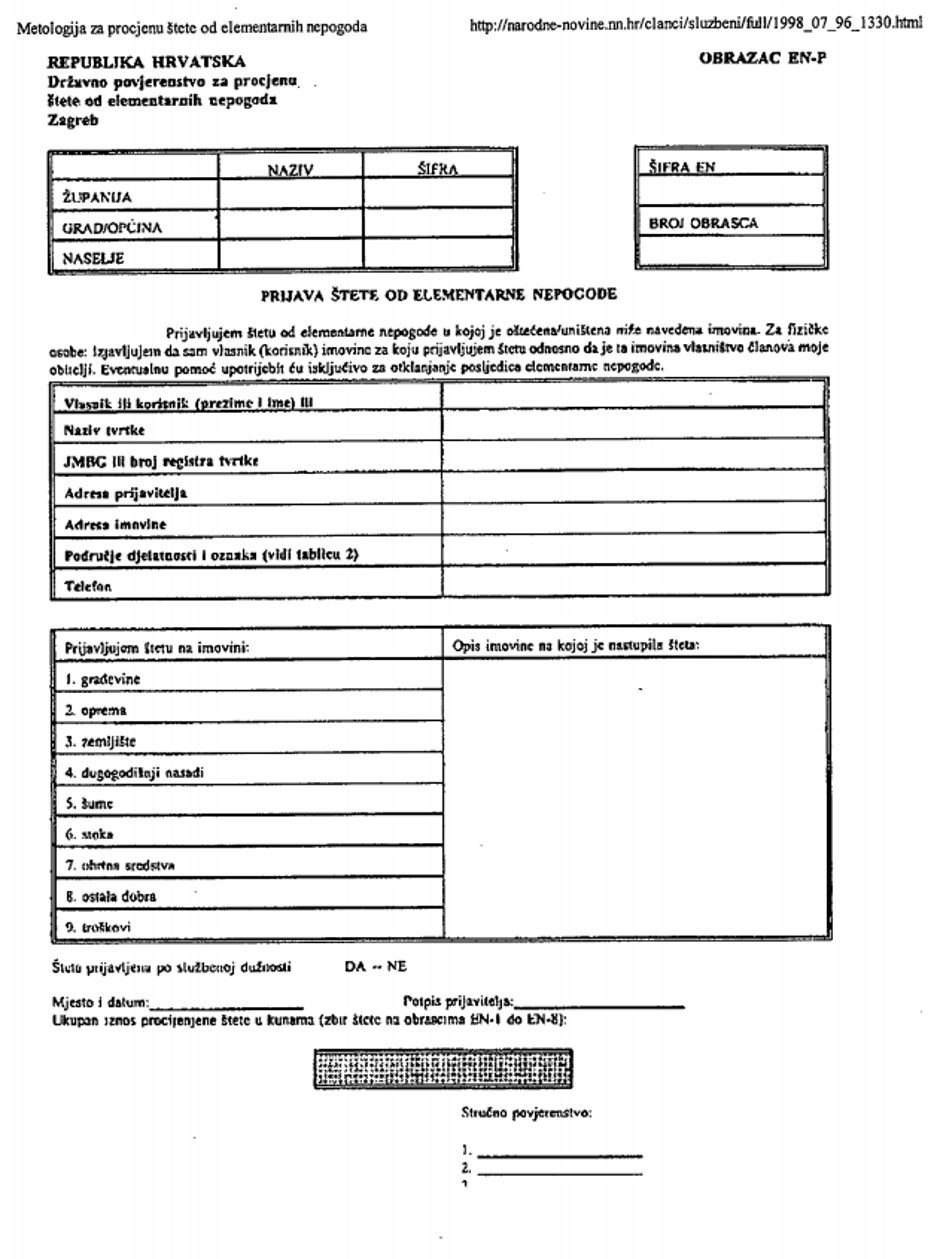
1. Šteta se prijavljuje na obrascu EN-P;

2. Fizičke osobe dužne su umjesto JMBG ili broja registra tvrtke upisati OIB.

3. Prijavu štete na imovini fizičkih osoba potpisuje prijavitelj.

Foto: Screenshot/reuters

požari
1/1

Upute za prijavu štete pravnim osobama

1. Šteta se prijavljuje na obrascu EN-P;

2. Pravne osobe dužne su, također, upisati OIB. 

3. Prijavu štete na imovini fizičkih osoba potpisuju odgovorna osoba i predsjednik Stručnog povjerenstva pravne osobe.

4. Pravne osobe dužne su dati prijedlog za imenovanje Stručnog povjerenstva za procneu štete na imovinu pravne osobe.

5. Pravne osobe uz prijavu podnose:

Izvještaj u kojem se navode okolnosti u kojima je šteta nastala te njene kratkoročne i dugoročne posljedice za pravnu osobu, iznos sredstava koja su dobivena ili se očekuju s naslova osiguranja imovine, fotodokumentaciju iz koje se može dobiti uvid u opseg počinjene štete, kopiju registracije tvrtke, dokumente kojima dokazuju pravo vlasništva ili korištenja na imovini pogođenoj nepogodom izvorni primjerak dokumentacije s proračunom štete prema merodologiji.

požari
1/14

 

Komentara 4

SJ
Sve je uzalud
21:00 20.07.2017.

Evo kako ( napisati običnom rukom) i gdje ( na led kao obično)........................možete prijaviti štetu od požara

BE
belimo
20:00 20.07.2017.

Uz svaki zahtjev priklamati zadnju ARKOD sliku i gdje se vidi zapuštenost i zakorovljenost tj slika i prilika nerada i nemara umjesto odštete opaliti globu!

NA
nasunis
16:56 20.07.2017.

I usput savjetovati da osiguraju barem gradevine. Slazem se da za polja, maslenike i sl treba naknada. Za gradjevine bas i ne , ali eto kad je elementarna neoogida.

Važna obavijest
Sukladno članku 94. Zakona o elektroničkim medijima, komentiranje članaka na web portalu i mobilnim aplikacijama Vecernji.hr dopušteno je samo registriranim korisnicima. Svaki korisnik koji želi komentirati članke obvezan je prethodno se upoznati s Pravilima komentiranja na web portalu i mobilnim aplikacijama Vecernji.hr te sa zabranama propisanim stavkom 2. članka 94. Zakona.

Za komentiranje je potrebna prijava/registracija. Ako nemate korisnički račun, izaberite jedan od dva ponuđena načina i registrirajte se u par brzih koraka.

Želite prijaviti greške?

Još iz kategorije

Kupnja

Pretplata