Večernji list
  • Podijeliti
    Podijeli
    Facebook Twitter
  • Natrag na članak

FOTO Na zagrebačkom Jordanovcu prodaje se luksuzni stan za 767 tisuća eura, pogledajte kako izgleda

Na zagrebačkom Jordanovcu, u ekskluzivnoj novogradnji, na tržište je stavljen četverosobni stan čija je cijena 767.625 eura.
Na zagrebačkom Jordanovcu, u ekskluzivnoj novogradnji, na tržište je stavljen četverosobni stan čija je cijena 767.625 eura.
Foto: EUROSTYLE CONSULTING d.o.o./Njuškalo
Share
Podijeli
Facebook Twitter
Stan se nalazi u neposrednoj blizini važnih sadržaja poput vrtića, osnovnih i srednjih škola, KBC-a Rebro te Doma zdravlja, a smješten je u mirnom okruženju, povučen od glavne ceste.
Stan se nalazi u neposrednoj blizini važnih sadržaja poput vrtića, osnovnih i srednjih škola, KBC-a Rebro te Doma zdravlja, a smješten je u mirnom okruženju, povučen od glavne ceste.
Foto: EUROSTYLE CONSULTING d.o.o./Njuškalo
Share
Podijeli
Facebook Twitter
Zgrada se sastoji od 9 stambenih jedinica raspoređenih na visoko prizemlje, prvi i drugi kat. Na svakoj etaži nalaze se po tri stana, a visina stropa iznosi 2,85 metara, što osigurava prozračnost prostora.
Zgrada se sastoji od 9 stambenih jedinica raspoređenih na visoko prizemlje, prvi i drugi kat. Na svakoj etaži nalaze se po tri stana, a visina stropa iznosi 2,85 metara, što osigurava prozračnost prostora.
Foto: EUROSTYLE CONSULTING d.o.o./Njuškalo
Share
Podijeli
Facebook Twitter
Stan je orijentiran jugozapadno, a u sklopu objekta se prodaju i ostali četverosobni stanovi slične kvadrature. Uz stan je obvezna kupnja 1-2 garažna parkirališna mjesta čija površina varira od 13 do 21 m². Garaže su povezane liftom s ostalim etažama zgrade.
Stan je orijentiran jugozapadno, a u sklopu objekta se prodaju i ostali četverosobni stanovi slične kvadrature. Uz stan je obvezna kupnja 1-2 garažna parkirališna mjesta čija površina varira od 13 do 21 m². Garaže su povezane liftom s ostalim etažama zgrade.
Foto: EUROSTYLE CONSULTING d.o.o./Njuškalo
Share
Podijeli
Facebook Twitter
OGLAS
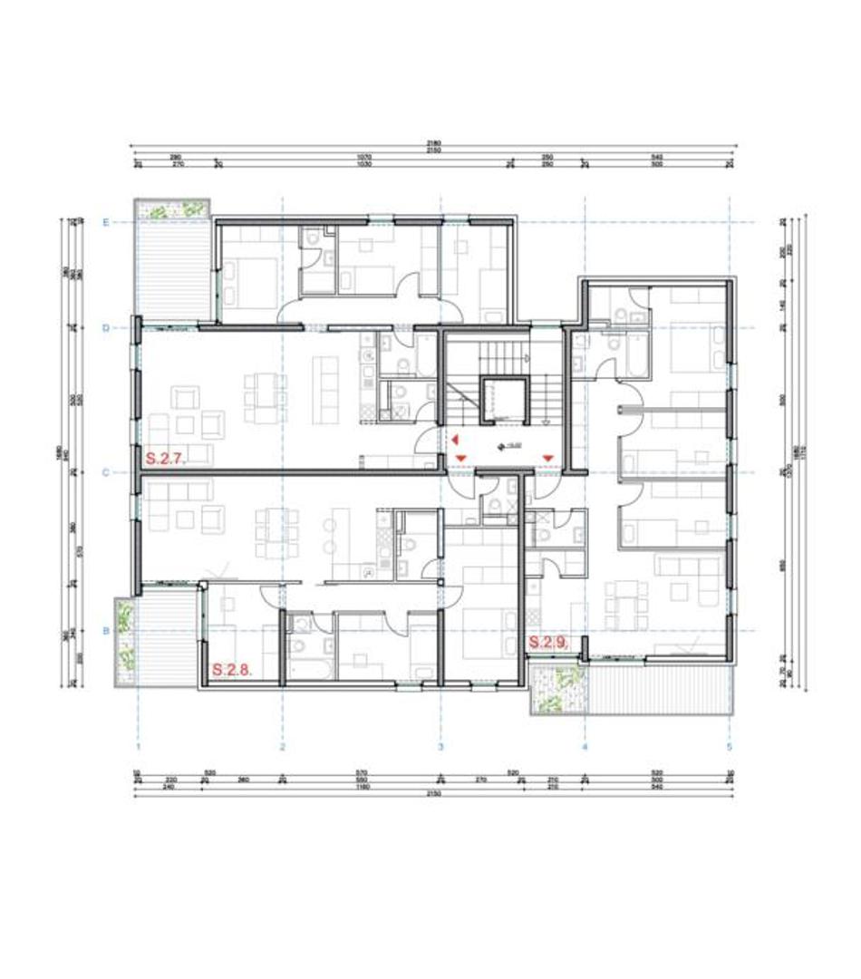
Stan 2.8. koji je na prodaji prostire se na ukupnih 183,97 m², dok netto površina iznosi 111,25 m².
Stan 2.8. koji je na prodaji prostire se na ukupnih 183,97 m², dok netto površina iznosi 111,25 m².
Foto: EUROSTYLE CONSULTING d.o.o./Njuškalo
Share
Podijeli
Facebook Twitter
Stan se sastoji od ulaznog hodnika (4,56 m²), predprostora (5,50 m²), dnevnog boravka s kuhinjom (34,66 m²), WC-a (1,95 m²), dvije kupaonice (4,15 m² i 3,60 m²) te tri sobe (14,85 m², 8,64 m², 9,10 m²). Uz to, stanu pripada balkon površine 8,96 m² i krovni vrt površine 88 m², čija je koeficijentna površina za obračun 22 m².
Stan se sastoji od ulaznog hodnika (4,56 m²), predprostora (5,50 m²), dnevnog boravka s kuhinjom (34,66 m²), WC-a (1,95 m²), dvije kupaonice (4,15 m² i 3,60 m²) te tri sobe (14,85 m², 8,64 m², 9,10 m²). Uz to, stanu pripada balkon površine 8,96 m² i krovni vrt površine 88 m², čija je koeficijentna površina za obračun 22 m².
Foto: EUROSTYLE CONSULTING d.o.o./Njuškalo
Share
Podijeli
Facebook Twitter
Grijanje stana je etažno plinsko podno s dodatnim hlađenjem i grijanjem putem invertera. Uz to, kupac ne plaća porez na promet nekretnina.
Grijanje stana je etažno plinsko podno s dodatnim hlađenjem i grijanjem putem invertera. Uz to, kupac ne plaća porez na promet nekretnina.
Foto: EUROSTYLE CONSULTING d.o.o./Njuškalo
Share
Podijeli
Facebook Twitter
Foto: EUROSTYLE CONSULTING d.o.o./Njuškalo
Share
Podijeli
Facebook Twitter
OGLAS
Foto: EUROSTYLE CONSULTING d.o.o./Njuškalo
Share
Podijeli
Facebook Twitter
Foto: EUROSTYLE CONSULTING d.o.o./Njuškalo
Share
Podijeli
Facebook Twitter
Foto: EUROSTYLE CONSULTING d.o.o./Njuškalo
Share
Podijeli
Facebook Twitter
Foto: EUROSTYLE CONSULTING d.o.o./Njuškalo
Share
Podijeli
Facebook Twitter
OGLAS
Foto: EUROSTYLE CONSULTING d.o.o./Njuškalo
Share
Podijeli
Facebook Twitter
Foto: EUROSTYLE CONSULTING d.o.o./Njuškalo
Share
Podijeli
Facebook Twitter

Ne propustite

RIJEDAK FENOMEN

VIDEO Ljudi ostali u čudu: 'Nismo ovako nešto vidjeli 50 godina...'

'kakva fora!'

Pronašla je tajna vrata tijekom renovacije kuće i razotkrila misterij star 80 godina

Rijeka: Susret Hrvatske i Njemačke u Billie Jean King Cupu, Petra Marčinko - Anna Lena Friedsam
Video sadržaj
BILLIE JEAN KING CUP

Marčinko teže od očekivanog donijela vodstvo Hrvatskoj

storyeditor/2025-11-09/2025-11-07T182117Z_111385579_RC2SRHAAVZYJ_RTRMADP_3_USA-HUNGARY.JPG
Premium sadržaj
AMERIČKI STATE DEPARTMENT

Orbánu, ako ga dobije, izuzeće za rusku naftu najdulje godinu dana

1/